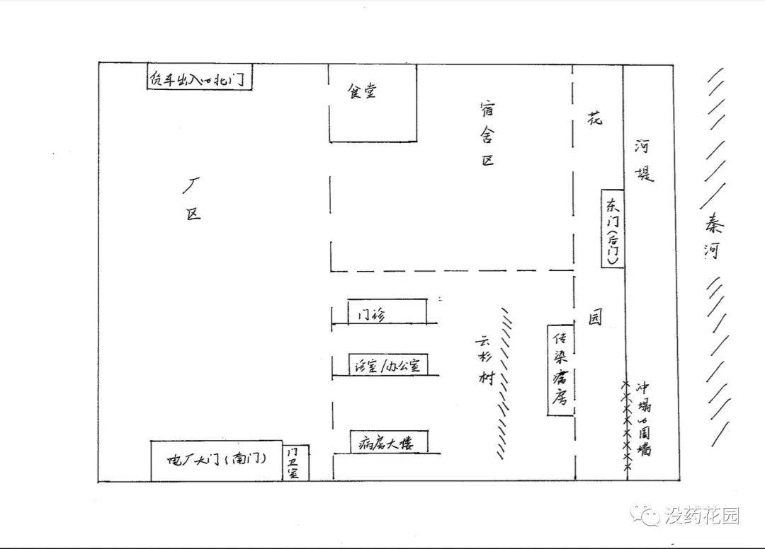
從平面圖來看,職工醫院位于廠區東南角,西面是車間,北面是宿舍區,食堂在宿舍區里面。
小花園的圍墻外就是秦河。為了方便病人到河堤上散步,花園的圍墻上留有一個后門,鑰匙在醫院的清潔工手上。
每天早上6點半,清潔工上班時會把后門打開,下午6點下班時再鎖上。
不過,這個后門鎖不鎖沒有太大意義。前一年暑期發大水,洪水漫過河堤,把花園東邊的圍墻沖塌了十多米。由于電廠的效益不怎麼好,拿不出錢來,所以這圍墻一直沒有修復,外面的人只要有心就可以踩著坍塌的碎磚堆進廠區。
職工醫院主要有三棟建筑,從北向南,依次排列。最北面的兩層樓是門診樓;中間的兩層樓是醫生的診室和辦公室;最南邊挨著圍墻的三層樓是病房大樓。
(廠區布局圖)
孟薇和李梅所在的護士室,位于病房大樓一層,走廊南邊的正中位置,孟薇平時(包括昨夜)都是在這里值班。
護士室人來人往,再加上昨天早晨,李梅和黃淑珍進行過清掃,所以現場已經被徹底破壞。
技室的干警勘查發現,護士室的門、窗均無撬別、攀登的痕跡,窗下的泥土也無異常。 醫院花園圍墻坍塌及附近的河堤也都沒有提取到有用的線索。
孟薇在護士室的值班記錄顯示,在12月4日19點準時接班(孟薇4日晚頂替李梅值班,等于是自己和自己接);21點30分在護士室給一位王姓患者換過一次藥。
除此之外,再無其他況。
周建國和熊穆負責詢問醫院部人員。李梅提起昨天早上護士室凌得很反常,并把孟薇的錢包給了他們。熊穆打開錢包,里面只有幾塊錢零錢。
Advertisement
孟薇的舍友黃淑珍說,4日晚6點左右,和孟薇一起在食堂吃了飯。孟薇回宿舍簡單洗漱后就去值夜班了。黃淑珍沒有排班,一直在宿舍休息,所以那是最后一次見到孟薇。
當晚的值班醫生孫明宏回憶,他在晚上8點結束例行查房,返回時經過護士室還看到過孟薇,和打了個招呼。隨后他就回到另一棟樓的診室里值班,此后就沒再遇到過孟薇。
經過一番調查得出,最后見到孟薇的,應該就是值班記錄里的那位王姓病人。他因工傷住院,4日晚上9點30左右,曾前往護士室讓孟薇給他背部的傷口換了一次藥。
此時,孟薇的父母已從江北來到了電廠,安排住在廠里的招待所。跟李梅等人談完話后,周建國又帶著熊穆來到了招待所。
孟薇的父母都是農民,五十歲左右,看上去質樸老實,臉上手上都有常年艱苦勞作的印記。兩人正局促不安地坐著,見有警察走進來,立刻起迎上去。
“警察同志,我們家孩子到底出什麼事了?好好的一個人,怎麼就找不見了?”
面對兩位老人迫切慌張的面孔,熊穆一時間不知該如何應對,他很想出言安,但就目前的況來說,他對孟薇失蹤一事還沒有任何頭緒。
經驗富的周建國委婉地回答:“你們不要急,現在還在調查階段,我們這次來,是想了解一下孟薇的個人況,希你們可以冷靜下來配合我們調查。”
“好、好,警察同志,你想問什麼就問吧,只要能找到薇薇,我們一定冷靜、一定配合。”兩位老人慢慢平復了心,攙扶著彼此的胳膊重新坐回位置上。
“孟薇有沒有談對象?”周建國開門見山。
“沒有。”孟母的語氣很肯定,“薇薇年紀小,又是個瞞不住事兒的,如果談了對象肯定會告訴我們的。前一陣倒是有人上門介紹過,但薇薇的意思是,自己畢業沒多久,要先工作幾年,再考慮找對象的事。”
Advertisement
“孩子每隔兩周的周末都會回家,不像在談對象的樣子。”孟薇的父親補充道。
“那有沒有關系比較好的男同學,或是走得比較近的男朋友之類的?”
“沒聽說過,在衛校的那幾個好朋友我們都見過,都是孩兒。”
“平時的消費況怎麼樣?上有沒有戴一些昂貴的首飾?”熊穆主開口問。
“我們家里頭不富裕,別說首飾了,就是新服一年也買不上幾件。薇薇是個孝順孩子,出去工作一年多,賺的錢大部分都補了家里,我讓留一些自己買點好吃好穿的,說在這里上班有護士服穿,有食堂吃,又不出門,本用不到錢。”
問完了話,師徒倆對孟薇已經有了大致的了解,無論是在家里還是職場,孟薇都無疑是個讓人放心的好姑娘。

